Zur Navigation wechseln Zum Inhalt wechseln Zum Footer wechseln

**Mehrgenerationenwohnen** Gebäudeensemble mit Garten + Garage

Objektnummer
3401-MFH
Objektart
Haus
Objekttyp
Mehrfamilienhaus
Vermarktungsart
Kauf
PLZ
53804
Ort
Much
Land
Deutschland
Anzahl Wohneinheiten
7
Wohnfläche
503 m²
Nutzfläche
150 m²
Anzahl Zimmer
23
Anzahl Schlafzimmer
10
Anzahl Badezimmer
6
Anzahl sep. WC
3
Anzahl Balkone
2
Anzahl Terrassen
1
Gäste-WC
Ja
Ausstattungsqualität
normal
Balkon
Ja
Terrasse
Ja
Wintergarten
Ja
Kamin
Ja
unterkellert
teilweise
Heizungsart
Zentralheizung
Befeuerung
Gas
Stellplatzart
Garage, Stellplatz im Freien
Kaufpreis
1.199.000 €
Außenprovision
3,57 % Käuferprovision inkl. gesetzlicher MwSt.
verfügbar ab
nach Absprache

Zur Immobilie

Mit diesem Angebot präsentieren wir Ihnen ein architektonisches Gesamtensemble, bestehend aus einem Zweifamilienhaus, einem Wohn- und Geschäftshaus sowie einem Einfamilienhaus.
Die Häuser 1 und 2 wurden im Jahr 1976 auf zwei benachbarten Grundstücken mit Flächen von 812 m² bzw. 711 m² in solider Massivbauweise errichtet. Sie verteilen sich auf Unter-, Erd- und Obergeschoss und bieten insgesamt eine Wohnfläche von etwa 280,63 m², zuzüglich Nutzfläche im Untergeschoss von Haus 1. Zudem stehen in Haus 2, das Praxen und Büros im Obergeschoss beherbergt, etwa 153,11 m² Gewerbefläche zur Verfügung. Haus 3 wurde 1967 auf einem angrenzenden Grundstück mit 1.197 m² gebaut. Es umfasst Unter-, Erd-, Dachgeschoss sowie eine Speicherebene und bietet eine Wohnfläche von rund 222,07 m² zuzüglich Nutzfläche.

Die drei zum Teil vermieteten Häuser befinden sich in einer sehr gepflegten, parkähnlichen Gartenanlage mit kleinem Teich und einem Gartenblockhaus.

Die genaue Aufteilung der Häuser und Wohneinheiten entnehmen Sie bitte den beigefügten Grundrissen.

Nachfolgend einige Bau- und Ausstattungsdetails im kurzen Überblick:

Haus 1
- Zweifamilienhaus auf einem 812 m² großen Grundstück
- 173,68 m² Wohnfläche (zzgl. anteilige Fläche Balkon und Nutzfläche)
- Baujahr 1976
- Putzfassade (Fassadenanstrich 2015)
- Dach: Flachdach (Dachdämmung 2017)
- Unter-, Erd- und Obergeschoss
- 4 Zimmer, davon 2 Schlafzimmer
- kleiner Abstellraum je Wohneinheit in der Wohnung
- Wannen-Duschbad im EG, Duschbad im OG
- 1 Balkon
- Vollkeller
- Gas-Zentralheizung inkl. Warmwasserbereitung
- Fenster: Kunststoffprofile mit Doppelverglasung
- Bodenbeläge: Laminat, Fliesen, Teppich
- 4 PKW-Stellplätze im Freien
- große Terrasse im EG mit einfassender Bepflanzung
- Balkon im OG mit Blick auf den schönen Garten und die Martinuskirche


Haus 2
- Wohn- und Geschäftshaus auf einem 711 m² großen Grundstück
- Nutzungsänderung auch zu einem reinen Mehrfamilien-Wohnhaus möglich
- 106,95 m² Wohnfläche
- 153,11 m² Gewerbefläche
- Baujahr 1976
- Putzfassade (Fassadenanstrich 2015)
- Dach: Flachdach (Dacheindeckung 2024)
- Erd- und Obergeschoss
- 10 Zimmer, davon 2 Schlafzimmer im EG
- 2 Gewerbeeinheiten im OG (Praxen/Büros)
- 2 Duschbäder im EG, 2 x Gäste-WC im OG
- Gas-Zentralheizung inkl. Warmwasserbereitung
- Fenster: Kunststoffprofile mit Doppelverglasung
- Bodenbeläge: Laminat, Fliesen, Teppich
- 5 PKW-Stellplätze im Freien


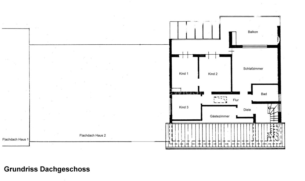
Haus 3
- Einfamilienhaus auf einem 1197 m² großen Grundstück
- Nutzung auch als Zweifamilienhaus möglich
- 222,07 m² Wohnfläche (zzgl. anteilige Balkon- und Terrassenfläche + Nutzfläche)
- Baujahr 1967
- Putzfassade (Fassadenanstrich 2015)
- Dach: Satteldach (Dachausbau 2010)
- Unter-, Erd-, Dachgeschoss und Speicherebene
- 8 Zimmer, davon bis zu 6 Schlafzimmer
- Wannen-Duschbad (2018), Duschbad (2005), Gäste-WC
- Balkon
- Wintergarten (1995)
- Terrasse
- Vollkeller
- Gas-Zentralheizung inkl. Warmwasserbereitung
- offener Kamin im Wohnraum + Außenkamin im Wintergarten
- Fenster: Kunststoffprofile mit Doppelverglasung
- Bodenbeläge: Laminat, Fliesen, Teppich
- Doppelgarage (Dacheindeckung 2024)


Ein Energieausweis wird derzeit erstellt und kann bei Interesse gerne nachgereicht werden.

Zukünftig erhalten alle drei Häuser Glasfaseranschlüsse. Der Ausbau ist in Much derzeit aktiv.
Weiterhin ist die Neugestaltung der Straße geplant. Als 30er-Zone wird die Straße verkehrsberuhigt, mit Parkplätzen und Grünelementen gestaltet.

Um die Privatsphäre der Mieter zu schützen, werden Innenfotos nur auszugsweise veröffentlicht. Wir bitten hierfür um Verständnis. Im Rahmen eines vereinbarten Besichtigungstermins können die Räumlichkeiten selbstverständlich begutachtet werden.

Haben wir Ihr Interesse geweckt? Dann fordern Sie doch einfach unverbindlich das Exposé mit der vollständigen Adresse per Email an. So können Sie sich schon vorab ein Bild der genauen Lage bzw. des Umfeldes machen.
Besichtigungstermine werden ausschließlich an Interessenten mit entsprechender Bonität bzw. nachweisbar geklärter Finanzierung (bspw. durch ein Baufinanzierungszertifikat Ihrer Hausbank) vergeben. Außerdem sollte vorweg eine Außenbesichtigung durch den Interessenten erfolgt sein. All dies trägt dazu bei, wichtige Punkte im Vorfeld zu klären.
Detaillierte Auskünfte zum Objekt erteilt Ihnen anschließend gerne unser zuständiger Mitarbeiter, Herr Philip Weber-Moewius.

Unsere Objekt-Nr.: 3401-MFH

3,57 % Käuferprovision inkl. gesetzlicher MwSt.
3,57 % Verkäuferprovision inkl. gesetzlicher MwSt.

Nutzungsart
Wohnen

Die Gemeinde Much liegt im Bergischen Land ca. 30 km nordöstlich von Bonn und ca. 35 km östlich von Köln, nahe der Grenze zum Oberbergischen Kreis. In der Region vereint sich die besondere Positionierung zwischen betriebsamen Großstädten mit dem hohen Erholungsfaktor der reizvollen Naturlandschaft zu einer ausgewogenen Kombination, die zu begeistern versteht. Als eine der ältesten Gemeinden des Rhein-Sieg-Kreises zählt Much heute ca. 15.000 Einwohner. Diese verteilen sich auf den Hauptort sowie 112 umliegende Dörfer und Weiler. Die hier angebotene Immobilie befindet sich in außergewöhnlich ruhiger und dennoch verkehrsgünstiger Lage im Zentrum von Much.

Im etwa 400 m entfernten Ortskern von Much finden Sie alles, was Sie für den täglichen Bedarf und darüber hinaus benötigen: einen gut sortierten Nahversorger (REWE) und Discounter (Aldi, Penny, Norma), einen Drogeriemarkt (Rossmann) und weitere Einkaufsmöglichkeiten, Allgemein- und Fachärzte, Apotheken, Bankfilialen sowie zahlreiche andere Dienstleistungsbetriebe.

Im Gemeindegebiet gibt es zwei offene Ganztagsgrundschulen, eine Gesamtschule und sieben Kindertagesstätten. Gymnasien befinden sich im benachbarten Neunkirchen, Overath und Siegburg.

Kulturelle Akzente werden durch Konzerte, Lesungen, Kabarett- bzw. Theaterveranstaltungen und verschiedene Ausstellungen gesetzt. Für Sport- und Freizeitaktivitäten bieten sich in Much vielfältige Möglichkeiten: Reitsport, Tennis, Golf auf einer 18-Loch-Meisterschaftsanlage, Schwimmen im Waldfreibad oder Hallenbad, Wandern und Radfahren, Angeln oder Mountainbiking.

Die gewerbliche Struktur der Gemeinde zeichnet sich durch Handwerksbetriebe und zahlreiche mittelständische Unternehmen aus den Bereichen Stahl- und Maschinenbau, Holz- und Kunststoffverarbeitung sowie der Bauwirtschaft aus. Viele dieser Betriebe haben ihren Standort in einem der großen Mucher Gewerbegebiete.

Die verkehrstechnische Anbindung ist durch ein großflächiges Straßen- und Busstreckennetz, Bürgerbus und die Nähe zu den Autobahnen A4 und A3 gewährleistet.
Die nächstgelegene Bushaltestelle (Linien 576 + 578 + 594) befindet sich fußläufig ca. 350 m vom Haus entfernt. Die Autobahn A4 Köln/Olpe mit den Anschlussstellen Bielstein bzw. Overath liegt jeweils etwa 10 km bzw. 13,6 km entfernt. Der Flughafen Köln/Bonn wird in einer halben Autostunde erreicht. Über die B56 Gummersbach/Siegburg ist eine Anbindung an die ca. 20,9 km entfernte A3 Köln/Frankfurt gegeben.
Zum Overather Bahnhof mit Park&Ride-Parkplatz benötigen Sie mit dem Auto ca. 14 Minuten. Von hier verkehrt die Bahn tagsüber im 30-Minuten-Takt (sonst alle 60 Minuten) in Richtung Rösrath und Köln sowie alle 60 Minuten nach Engelskirchen, Gummersbach und Marienheide. Die Fahrzeiten nach Köln und nach Gummersbach betragen jeweils ca. 35 Minuten.

Sie möchten Ihre Immobilie verkaufen?

Wir bringen Sie mit unserem Rundum-Sorglos-Service schnell und sicher zum Erfolg!

Seit 1991 steht unser Familienunternehmen Eigentümern vertrauensvoll beim Verkauf ihrer Immobilie zur Seite. Unsere Stärken sind eine exzellente Marktkenntnis, umfangreicher Service und ausgezeichnete Kontakte. Wir gehen auf jeden Kundenwunsch genau ein, nehmen uns Zeit und beraten individuell.

Unser Ziel ist es, Ihre Immobilie in kurzer Zeit zu einem attraktiven Preis zu verkaufen und Sie dabei vollumfänglich zu entlasten.

Sie wollen mehr erfahren? Nehmen Sie einfach unverbindlich Kontakt mit uns auf.

--------------------------------------------------------

„Wieviel Immobilie kann ich mir leisten?"

Damit der Kauf Ihrer Wunschimmobilie nicht an der Finanzierung scheitert, nutzen Sie gerne – auch schon VOR der Besichtigung – die unabhängige Finanzierungsberatung unseres Partners Herrn Thomas Voß von der Hüttig & Rompf AG. Er kennt die Bankenlandschaft seit über 20 Jahren wie seine Westentasche und ist bestens mit den internen Richtlinien, Prüfprozessen und Zinskonditionen der hiesigen Banken vertraut. Von ihm erhalten Sie taggleich ein erstes unverbindliches Orientierungsangebot und auf Wunsch innerhalb kurzer Zeit eine aussagefähige Bonitätsbescheinigung oder sogar ein bankbestätigtes Finanzierungsangebot. Selbstverständlich kostenfrei und ohne jedwede Verpflichtung für Sie.

Sie erreichen Herrn Voß telefonisch und per Mail unter 0160 9797 5454 bzw. tvoss@huettig-rompf.de. Gerne stellen wir den Kontakt auch für Sie her.

Ihr Ansprechpartner

Philip Weber-Moewius

Philip Weber-Moewius

Immobilien Weber-Moewius

Tel.:
02247 971110
Mobile:
0177 7970502
E-Mail:
philip@weber-moewius-immobilien.de

Zeithstraße 127
53819 Neunkirchen-Seelscheid

Weitere Immobilien

53819 Neunkirchen-Seelscheid

Wohn- + Gewerbeobjekt: repräsentatives Wohnhaus + Bürogebäude mit Halle + Hofareal / Mietkauf mögl.

Objektnummer
3088
Objektart
Haus
Objekttyp
Wohn- und Geschäftshaus
Vermarktungsart
Kauf
Anzahl Zimmer
11
Anzahl Schlafzimmer
6
Grundstücksgröße
2.080 m²
Wohnfläche
305 m²

53804 Much / Ophausen

3-Parteienhaus mit Nebengebäuden (Stallungen, Remisen), 2. Bauparzelle + Weideland

Objektnummer
3203-MFH
Objektart
Haus
Objekttyp
Zweifamilienhaus
Vermarktungsart
Kauf
Anzahl Zimmer
11
Anzahl Schlafzimmer
6
Grundstücksgröße
10.440 m²
Wohnfläche
240 m²

53809 Ruppichteroth

***Einzigartig*** gemütliches Einfamilienhaus im Zentrum von Ruppichteroth

Objektnummer
3376
Objektart
Haus
Objekttyp
Einfamilienhaus
Vermarktungsart
Kauf
Anzahl Zimmer
7
Anzahl Schlafzimmer
3
Grundstücksgröße
138 m²
Wohnfläche
151 m²

53804 Much

Modernisiertes Einfamilienhaus (einseitig angebaut) mit ELW, 2 Terrassen + Garten in Zentrumslage

Objektnummer
3395
Objektart
Haus
Objekttyp
Einfamilienhaus
Vermarktungsart
Kauf
Anzahl Zimmer
5
Anzahl Schlafzimmer
3
Grundstücksgröße
446 m²
Wohnfläche
138 m²

51491 Overath

Schickes Eigenheim mit Einliegerwohnung, Doppelgarage, Terrasse und zwei Balkonen

Objektnummer
3400
Objektart
Haus
Objekttyp
Einfamilienhaus
Vermarktungsart
Kauf
Anzahl Zimmer
8
Anzahl Schlafzimmer
5
Grundstücksgröße
542 m²
Wohnfläche
252 m²

    Ihre Anfrage zu der Immobilie „**Mehrgenerationenwohnen** Gebäudeensemble mit Garten + Garage“ (3401-MFH)

    * Pflichtfelder