Zur Navigation wechseln Zum Inhalt wechseln Zum Footer wechseln

Büro-/Praxisfläche im EG / neuwertig + barrierefrei / Terrasse, Garten, Stellplatz / Aufzug im Haus

Objektnummer
3416
Objektart
Büro/Praxen
Objekttyp
Bürofläche
Vermarktungsart
Miete
PLZ
53819
Ort
Neunkirchen-Seelscheid
Land
Deutschland
Etage
EG
Bürofläche
86 m²
Gewerbefläche
86 m²
Nutzfläche
13 m²
Gesamtfläche
86 m²
Anzahl Zimmer
3
Anzahl Terrassen
1
Anzahl Stellplätze
1
Gäste-WC
Ja
Ausstattungsqualität
gehoben
Garten
Ja
Fahrstuhl
Personenaufzug
unterkellert
Ja
Heizungsart
Fußbodenheizung
Befeuerung
Luft-Wasser-Wärmepumpe
Stellplatzart
Stellplatz im Freien
Kaltmiete
1.200 €
Stellplatzmiete
50 €
Nebenkosten
300 €
Kaution
3.750 €
Außenprovision
3 MKM zzgl. gesetzl. MwSt.
verfügbar ab
sofort

Zur Immobilie

Die moderne, neuwertige Gewerbeeinheit befindet sich im Erdgeschoss (links) eines Wohn-/Geschäftshauses mit insgesamt 6 Parteien, davon 2 Gewerbe- und 4 Wohneinheiten.

Besonders hervorzuheben ist der barrierefreie Zugang, der den Standort auch für Kunden und Geschäftspartner mit eingeschränkter Mobilität optimal nutzbar macht.
Sämtliche Ebenen des Gebäudes – einschließlich des Untergeschosses – sind komfortabel über einen Aufzug erreichbar. Der somit ebenfalls bequem zugängliche ca. 13 m² große Kellerraum der Einheit eignet sich ideal zur Nutzung als Archiv bzw. Lagerfläche.

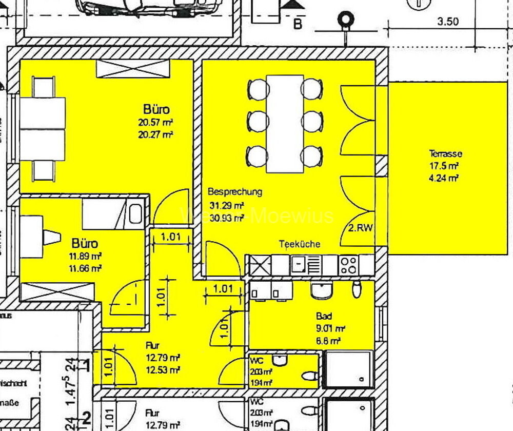
Die gut 86 m² große Gewerbeeinheit im Erdgeschoss teilt sich in Flur, zwei Zimmer/Büros, einen großzügig geschnittenen Raum (z. B. Besprechungsraum) mit Küchenanschlüssen und Terrassenzugang, ein Badezimmer und ein Gäste-WC. Die genaue Aufteilung entnehmen Sie bitte den beigefügten Grundrissen.

Der Einbau einer Küchenzeile müsste mieterseits erfolgen.

Die Terrasse mit einer Fläche von 17,50 m² und östlicher Ausrichtung wird von einer vollständig eingefriedeten und größtenteils sichtgeschützten Rasenfläche umrahmt. Ein idealer Ort, um in der Mittagspause zu entspannen und neue Energie zu tanken.

Das Bad verfügt über eine bodengleiche Dusche, Handwaschbecken und WC sowie über Anschlüsse für Waschmaschine und Wäschetrockner. Ein Fenster sorgt für optimale Licht- und Lüftungsverhältnisse.

Die Beheizung erfolgt mittels Fußbodenheizung über eine energieeffiziente Luftwärmepumpe; die Warmwasserbereitung dezentral über Durchlauferhitzer.
Der benötigte Allgemeinstrom wird hauptsächlich über eine Photovoltaik-Anlage gewonnen.
Bei den Fenstern handelt es sich um in Kunststoffprofile gefasstes Verbund-Sicherheitsglas (dreifach VSG) mit elektrisch betriebenen Rollläden.
Bei den Bodenbelägen handelt es sich um modernes Design-Vinyl und Fliesen.
Jedes Zimmer verfügt über einen Netzwerk-/Internetanschluss.
Am überdachten Eingangsbereich wurden eine Briefkasten- und eine Video-Gegensprechanlage installiert.

Die monatliche Nettokaltmiete für die ab sofort bezugsfreie Einheit beläuft sich auf € 1.200,-- plus € 50,-- für den PKW-Stellplatz. Hinzu kommt eine Nebenkostenvorauszahlung von € 300,-- monatlich, bereits inklusive der Heizkosten.
Als Kaution sind einmalig drei Monatskaltmieten, d. h. € 3.750,-- vor Übergabe des Mietobjektes fällig.

Haben wir Ihr Interesse geweckt? Dann fordern Sie doch einfach unverbindlich das Exposé mit der vollständigen Adresse an. So können Sie sich schon vorab ein Bild der genauen Lage bzw. des Umfeldes machen.
Des Weiteren möchten wir Sie um zeitnahe Zusendung der ausgefüllten Selbstauskunft bitten. All dies trägt dazu bei, wichtige Punkte im Vorfeld zu klären. Detaillierte Auskünfte zum Objekt erteilt Ihnen anschließend gerne unser zuständiger Mitarbeiter, Herr Philip Weber-Moewius.

Nutzungsart
Gewerbe

Die Immobilie liegt in einer ruhigen und gleichzeitig gut erreichbaren Lage mit gewerblicher Prägung im Ortsteil Seelscheid - Nackhausen. Die Umgebung ist durch eine Mischung aus kleinen Gewerbebetrieben, Handwerksunternehmen sowie Wohnbebauung geprägt.

Die Anbindung an das regionale Verkehrsnetz ist gut: Über die nahegelegene B56 sowie die Autobahn A3 (Anschlussstellen Lohmar oder Rösrath) ist eine schnelle Verbindung nach Bonn, Köln und Siegburg gewährleistet. Auch der öffentliche Nahverkehr ist durch Busverbindungen in fußläufiger Nähe gut erreichbar.
Der nächste Bahnhof befindet sich in Overath, ca. 10 Fahrminuten entfernt. Hier steht u.a. eine hervorragende Bahnanbindung nach Köln zur Verfügung.

Insgesamt bietet die Lage in Nackhausen eine ruhige, aber dennoch verkehrstechnisch günstige Position für verschiedenste gewerbliche Nutzungen – ideal für eine Büro-, Praxis- oder Dienstleistungsfläche.

Trotz der naturnahen und idyllischen Lage der Doppelgemeinde Neunkirchen-Seelscheid, erreichen Sie mit dem Auto in wenigen Minuten das Zentrum von Seelscheid mit vielfältigen Einkaufsmöglichkeiten (zum Beispiel Edeka, Aldi, Netto, Lidl), Bankfilialen, Poststelle, Ärzten, Apotheken, Optikern, Florist, Reisebüros etc. sowie diverser Gastronomie.

Unsere Objekt-Nr.: 3416

Ein Energieausweis wird zurzeit erstellt.

Dieses gewerbliche Angebot ist provisionspflichtig. Es fallen 3 Monatsnettokaltmieten (€ 3.750,--) zzgl. 19 % Mehrwertsteuer an.

Wir freuen uns auf Ihre Anfrage!

Bitte haben Sie Verständnis dafür, dass wir nur Anfragen mit vollständigen Adressdaten inklusive Vor- und Zuname, Anschrift, Telefon-/Mobilnummer und E-Mail-Adresse bearbeiten können. Eine Versendung an E-Mail-Anschriften anonymer Interessenten wird von den Eigentümern nicht gewünscht.

Alle Angaben sind ohne Gewähr und basieren ausschließlich auf Informationen, die uns von unserem Auftraggeber übermittelt wurden. Wir übernehmen keine Gewähr für die Vollständigkeit, Richtigkeit und Aktualität dieser Angaben. Irrtum, Zwischenverkauf oder -vermietung vorbehalten.

Falls Sie an weiteren Immobilienangeboten interessiert sind, informieren Sie sich bitte auf unserer Homepage: www.weber-moewius-immobilien.de.

Ihr Ansprechpartner

Philip Weber-Moewius

Philip Weber-Moewius

Immobilien Weber-Moewius

Tel.:
02247 971110
Mobile:
0177 7970502
E-Mail:
philip@wemo-immo.de

Zeithstraße 127
53819 Neunkirchen-Seelscheid

Ihre Anfrage zu der Immobilie „Büro-/Praxisfläche im EG / neuwertig + barrierefrei / Terrasse, Garten, Stellplatz / Aufzug im Haus“ (3416)

* Pflichtfelder