Zur Navigation wechseln Zum Inhalt wechseln Zum Footer wechseln

Gewerbeanwesen auf gut 23.000 m² Grundstück / verkehrsgünstig an der A4 gelegen

Objektnummer
3291-N
Objektart
Sonstige
Objekttyp
Gewerbeanwesen
Vermarktungsart
Kauf
PLZ
51674
Ort
Wiehl / Bomig
Land
Deutschland
Bürofläche
669 m²
Nutzfläche
17.307 m²
Gesamtfläche
17.350 m²
Anzahl Stellplätze
185
Ausstattungsqualität
normal
Fahrstuhl
Lastenaufzug, Personenaufzug
unterkellert
teilweise
Heizungsart
Etagenheizung, Zentralheizung
Befeuerung
Gas
Stellplatzart
Stellplatz im Freien
Kaufpreis
6.900.000 €
Außenprovision
4,76 % Käuferprovision inkl. gesetzlicher MwSt.
verfügbar ab
nach Absprache

Zur Immobilie

Bei der hier zum Kauf angebotenen Liegenschaft handelt es sich um großzügiges, vermietetes Gewerbeanwesen auf einem 23.494 m² großen Grundstück.

Das seit Erstellung durchgängig als Möbelhaus genutzte Objekt ist seit Ende 2006 als Filiale an einen führenden Möbel-Discounter vermietet. Gerade erst wurde die Laufzeit des Mietvertrages bis 31.03.2030 verlängert.

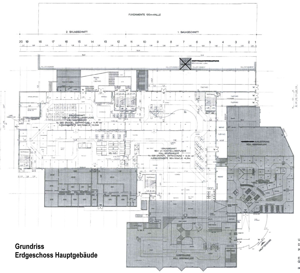
Die Immobilie besteht aus dem Hauptgebäude (Verkauf/Ausstellungsflächen, Bürotrakt, Nebenräume, An- + Auslieferung etc.) und einem separaten Nebengebäude (Hochregal-Lagerhalle, Anlieferung, Sozialräume + Technik) mit einer Gesamtfläche von etwa 17.350 m². Beide Gebäude sind über eine Hofüberdachung miteinander verbunden.

Neben insgesamt ca. 14.680 m² Verkaufs- bzw. Ausstellungsfläche, ca. 669 m² Bürofläche, ca. 1.350 m² Lagerfläche sowie ca. 608 m² Nebenfläche stehen noch etwa 185 PKW-Stellplätze und entsprechende Verkehrs- und Freiflächen zur Verfügung. Zur besseren Orientierung sind die Grundrisse beigefügt.

Die Nettomieteinnahmen belaufen sich jährlich auf rund € 489.689,--, d. h. monatlich auf € 40.807,40. Dabei entfallen pro Monat € 40.000,-- auf die Vermietung des Möbelhauses und € 807,40 auf die Vermietung von Funkstationen bzw. Antennenanlagen auf dem Gelände an drei externe Betreiber.
Für befestigte und unbefestigte Freiflächen, Außenausstellungs- sowie Parkflächen wird keine gesonderte Miete erhoben.

Der Mieter trägt die Grundsteuer seit 2021 sowie die direkt und ausschließlich mit dem Betrieb des Objektes zusammenhängenden Nebenkosten (Wasser, Strom, Gas, Müllabfuhr, Schornsteinfeger, Kanalbenutzung) und hat eigene Verträge mit den Versorgungsträgern abgeschlossen. Er sorgt für die Wartung der technischen Anlagen wie Heizungen, Lüftung, Rauch- und Wärmeabzug, automatische Türanlagen, sämtliche Aufzüge etc. Eine Ausnahme bildet hier die Wartung der Sprinkleranlage, welche vom Eigentümer koordiniert wird. Die Kosten werden dem Mieter in Rechnung gestellt.

Der Eigentümer trägt die Kosten für die Gebäude- bzw. Sachversicherung mit den Risiken Feuer, Leitungswasser und Sturm sowie eine Haus- und Grundstückshaftpflichtversicherung.

Nachfolgend einige Bau- und Ausstattungsdetails im kurzen Überblick:

- Gewerbeanwesen auf 23.494 m² Grundstück
- Nutzung durchgängig als Möbelhaus

- Hauptgebäude Hs.-Nr. 8 (UG tlw., EG, OG)
- Ursprungsbaujahr 1968, Erweiterungen + Umbauten in den Folgejahren
- 1998/99 Abbruch + Neubau Hauptgebäude Verkaufs- bzw. Ausstellungsflächen
- stufenlose Eingangszuwegung
- Ausgleich Höhenversätze in den Ausstellungsräumen mit Rampen

- Nebengebäude Hs.-Nr. 6 (UG tlw., EG)
- Baujahr 1996: separate Hochregal-Lagerhalle mit Nebenräumen

- 1999 Bau einer Hofüberdachung zwischen beiden Gebäuden

Technische Anlagen:
- Glas-Personenaufzug, Personenaufzug, Lastenaufzug, Behindertenaufzug
- Hauptheizung: 2 x Viessmann Gas-Heizkessel
- Sonstige: Gas-Gebläseheizungen, -Brennwerttherme, -Therme, -Heizautomat
- Brandmeldeanlage
- Einbruchmeldeanlage
- Alarmierungsanlage
- Sprinkleranlage, Feuerlöschpumpe mit GSM-Modul
- Lüftungsgerät Dach
- Blitzschutzanlage
- Trafostation
- mehrere Roll- und Sektionaltore, Automatiktüren, Schnelllauftor

Eine genaue Aufstellung aller technischen Anlagen lassen wir Ihnen auf Anfrage gerne zukommen.

Bauweise:
- Fundamente: Kiesbeton als Einzel- + Streifenfundamente
- Außenwände: Beton-Sandwich-Elemente
- Trennwände: Betonfertigteile, Kalksandstein- + Bimsmauerwerk
- Gebäudetrenn- und Brandwände: Betonfertigteilwände F90
- Decken: Betonfertigteildecken F90
- Tragwerke des Daches: Betonfertigteilbinder
- Dachhaut: Trapezblech mit Wärmedämmung + Abdichtungsbahn
- Dachflächen: Flachdach mit Folienabdichtung
- Treppen: Stahlbetontreppen F90
- Treppenräume: Betonfertigteile F90
- Türen + Fenster: Stahlblechtüren F90, Aluminium + Stahlblech in RAL 3003

Haben wir Ihr Interesse geweckt? Dann fordern Sie doch einfach unverbindlich das Exposé mit der vollständigen Adresse per Email an. So können Sie sich schon vorab ein Bild der genauen Lage bzw. des Umfeldes machen.
Besichtigungstermine werden ausschließlich an Interessenten mit entsprechender Bonität vergeben. Außerdem sollte vorweg eine Außenbesichtigung durch den Interessenten erfolgt sein.
Detaillierte Auskünfte zum Objekt erteilt Ihnen anschließend gerne unser zuständiger Mitarbeiter, Herr Philip Weber-Moewius.

Nutzungsart
Gewerbe

Die Stadt Wiehl ist die zweitgrößte kreisangehörige Gemeinde und liegt im Oberbergischen Kreis (Regierungsbezirk Köln), in Luftlinie etwa 41 km östlich von Köln. Etwa 25.000 Einwohner verteilen sich auf 51 Stadt- bzw. Ortsteile. An das Stadtgebiet grenzen die Nachbargemeinden Gummersbach, Reichshof, Nümbrecht, Much und Engelskirchen.

Im Landesentwicklungsplan NRW ist die Stadt Wiehl dem Versorgungsbereich Grundzentrum mit Teilfunktion eines Mittelzentrums zugeordnet.

Zwischen der Bundesautobahn A 4 (Aachen - Köln - Olpe) und Wiehl liegt das mit 80,6 ha größte Gewerbeareal der Stadt: Wiehl-Bomig. Dieses teilt sich in drei separate Gewerbegebiete: Bomig-West, Bomig-Ost und Bomig-Nord.

Das Gewerbeanwesen liegt äußerst verkehrsgünstig im zentralen Gewerbegebiet Bomig-West (48,8 ha). Von der Bundesautobahn A 4 aus ist das Objekt gut sichtbar und von der vis-à-vis gelegenen Anschlussstelle (AS 25 Gummersbach) nach gerade einmal 950 m erreicht. Umliegende Stadtteile und Ortschaften sind über die zweispurig ausgebaute B 256 (Westtangente) und die ebenfalls zweispurige L 305 angebunden. Der Anschluss an den ÖPNV erfolgt über die ca. 400 m entfernte Bushaltestelle „Wiehl Bomig West“.

Wiehl ist mit ca. 10.000 Arbeitsplätzen einer der profiliertesten Gewerbestandorte in der Region. Mit weiträumigen Gewerbeflächen bietet die Stadtgemeinde einer Vielzahl von Unternehmen aus unterschiedlichsten Branchen Platz, so z. B. dem weltweit führenden Hersteller von Achsen und intelligenten Fahrwerksystemen für die Nutzfahrzeugindustrie mit Hauptsitz in Wiehl, Betrieben der Kunststoff- und Metallverarbeitung, der Elektro- und Medizintechnik, Handwerkbetrieben, Freiberuflern und Dienstleistern aller Art und anderen.

Die verkehrstechnische Anbindung ist hervorragend. Im Stadtgebiet befinden sich zwei Auf- und Abfahrten zur BAB 4.

Über die Bahnanschlüsse in Engelskirchen-Ründeroth und Gummersbach-Dieringhausen (ca. 7 km) ist Wiehl an das Eisenbahnnetz in Richtung Köln angeschlossen.

Der Flughafen Köln/Bonn (ca. 50 km) bietet Anschluss an das internationale Luftverkehrsnetz.

Unsere Objekt-Nr.: 3291

Ein Energieausweis wird zurzeit erstellt.

4,76 % Käuferprovision inkl. gesetzlicher MwSt.

Wir freuen uns auf Ihre Anfrage!

Bitte haben Sie Verständnis dafür, dass wir nur Anfragen mit vollständigen Adressdaten inklusive Vor- und Zuname, Anschrift, Telefon-/Mobilnummer und E-Mail-Adresse bearbeiten können. Eine Versendung an E-Mail-Anschriften anonymer Interessenten wird von den Eigentümern nicht gewünscht.

Alle Angaben sind ohne Gewähr und basieren ausschließlich auf Informationen, die uns von unserem Auftraggeber übermittelt wurden. Wir übernehmen keine Gewähr für die Vollständigkeit, Richtigkeit und Aktualität dieser Angaben. Irrtum, Zwischenverkauf oder -vermietung vorbehalten.

Falls Sie an weiteren Immobilienangeboten interessiert sind, informieren Sie sich bitte auf unserer Homepage: www.weber-moewius-immobilien.de.

Ihr Ansprechpartner

Philip Weber-Moewius

Philip Weber-Moewius

Immobilien Weber-Moewius

Tel.:
02247 971110
Mobile:
0177 7970502
E-Mail:
philip@wemo-immo.de

Zeithstraße 127
53819 Neunkirchen-Seelscheid

Ihre Anfrage zu der Immobilie „Gewerbeanwesen auf gut 23.000 m² Grundstück / verkehrsgünstig an der A4 gelegen“ (3291-N)

* Pflichtfelder